试述双螺杆挤出机的机筒进料装置结构

作者:admin来源:双合金螺杆机筒阅读次数:关闭本页

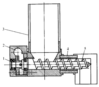
按双螺杆的工作条件需要,双合金螺杆机筒进料装置应采用计量加料方式。图2-47所示为双螺杆机筒进料装置结构。它像一台能独立工作的单螺杆挤出机。

这种计量供料装置的供料螺杆转动由直流电动机通过蜗杆减速后驱动。供料螺杆的转速及输送料量由双螺杆工作转速、机筒温度、挤塑成型需要的熔料压力和挤塑成型塑料制品生产用料量来决定。根据生产需要,可随时调整供料螺杆的转速及供料量。供料螺杆可以是单头螺纹,也可以是多头螺纹,一般多采用单头螺纹。

双螺杆挤出机挤塑制品采用粉状原料时,为了防止料斗中的粉状料下落时产生“架桥”现象,料斗中应有螺旋搅拌加料装置,以保证双螺杆挤塑工作的连续供料。

双螺杆机筒用进料装置结构

图2-47 双螺杆机筒用进料装置结构
1-轴承;2-供料螺杆转动用蜗杆减速箱;3-料斗;4-机筒;5-进料螺杆

返回顶部