承受双螺杆轴向力的止推轴承怎样布置?
双螺杆在挤塑原料时产生的轴向推力接近或略高于单螺杆的工作轴向力,这么大的轴向力需要用较大规格的轴承承担,但是,由于双螺杆的工作不知限制,轴承的布置就比较复杂。为了较合理地安排两组螺杆用轴承位置,双合金螺杆机筒制造厂家设计了多种双螺杆用轴承布置方案,这里只介绍两种常见方案。
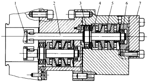
图2-45所示为一种圆柱形双螺杆用止推轴承的布置方式。由于轴承的规格较大,把两组轴承错位布置,以解决轴承布置空间不足的限制。采用这种轴承布置方式,两根螺杆的轴向位移量也相同,保证了两根螺杆的正常啮合工作。

图2-45 圆柱形双螺杆用止推轴承的错位布置
1-螺杆;2-传动轴;3,6-深沟球轴承;4-弹性元件;5-推力滚子轴承;7-压盖
图2-46所示为圆锥形双螺杆用止推轴承的布置。圆锥形双螺杆啮合工作时,尾部轴承部位空间比较大,承受螺杆轴向力用轴承的布置就比较紧凑。

图2-46 圆锥形双螺杆用止推轴承的布置
1-螺杆连接套;2,4-圆柱滚子轴承;3-传动齿轮;5,6-圆锥滚子轴承